الصفحة الأولى كافة المشاريع سجل الزوار من نحن اتصل بنا  
القائمة الرئيسية
رمز نقطي الصفحة الأولى
رمز نقطي الدراسات الهندسية
رمز نقطي المقاسم المعدة للبيع
رمز نقطي المقاسم المعدة للإيجار
رمز نقطي التدعيم والترميم
رمز نقطي أعمال المساجد
رمز نقطي التنفيذ بالأمانة
رمز نقطي أعمال قيد التنفيذ
رمز نقطي أعمال منفذة
رمز نقطي معلومات عامة
رمز نقطي مواقع صديقة
رمز نقطي أخبارنا
رمز نقطي سجل الزوار
رمز نقطي من نحن
رمز نقطي اتصل بنا

 
بحث في المشاريع
التصنيف
 
النوع
اسم المشروع
  

 
 
القائمة الإخبارية
اضف بريدك للحصول على تحديثات و أخبار موقعنا
 
الاسم الكامل:
البريد الالكتروني :

 
أحوال الطقس
 
 
 
 
 
 
 
 
صفحة جديدة 1
الصفحة الأولى > الدراسات الهندسية > مسجد السيدة أم سلمة.. 
 
تفاصيل المشروع
 

 


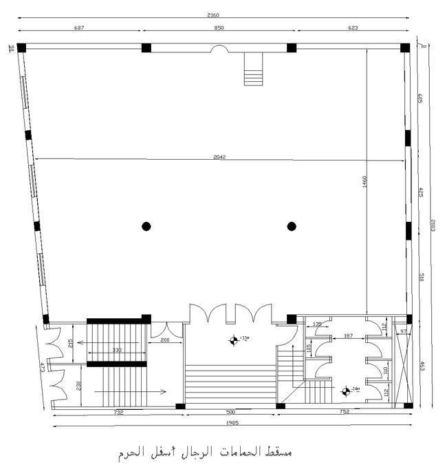
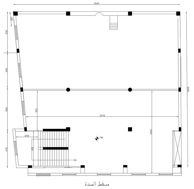
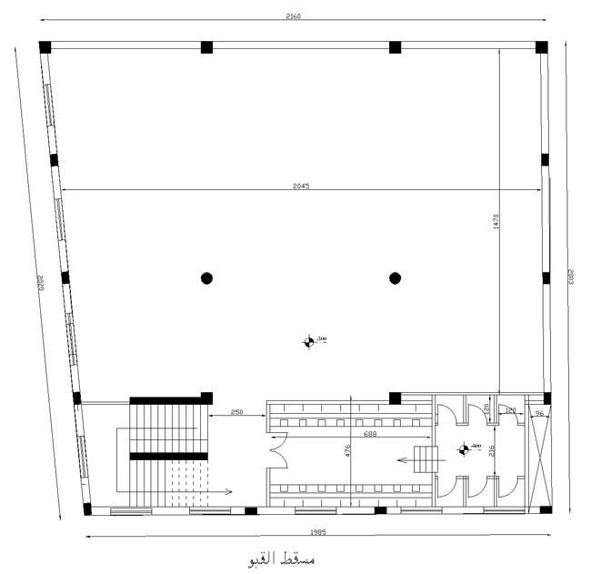
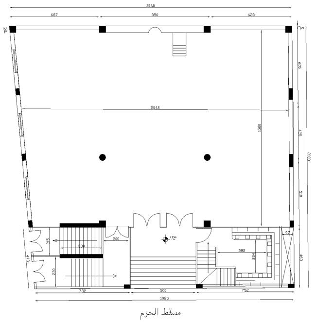
مسجد أم المؤمنين السيدة أم سلمة المخزومية


تقع أرض المسجد بعد دوار الفاخورة في شارع متفرع من كرم الزيتون إلى الغرب قليلا والأرض تقع على زاوية بمساحة /416/ مترمربع


وتم تصميم المسجد فوق هذه الأرض بحرم تحت أرضه بمساحة  /300/ مترمربع وباقي مساحة الأرض مواضئ ومنافع وأدراج وهذا القسم مخصص للنساء وحرم علوي بمساحة /300/ مترمربع وله سدة بمساحة /220/ مترمربع للرجال


وباقي المساحة مواضئ ومنافع وأدراج والمخططات والمنظور يوضح ذلك.

 

 

 

 

 

أقسام المشروع
   
 
صور و مخططات المشروع
 
صور مراحل تطور المشروع
 
تفاصيل المشروع

النوع : مساجد

التصنيف: الدراسات الهندسية

تاريخ الانتهاء :0000-00-00

 
 
 
 
 
 
 


© All Rights Reserved for alwajieh.
2358800