الصفحة الأولى كافة المشاريع سجل الزوار من نحن اتصل بنا  
القائمة الرئيسية
رمز نقطي الصفحة الأولى
رمز نقطي الدراسات الهندسية
رمز نقطي المقاسم المعدة للبيع
رمز نقطي المقاسم المعدة للإيجار
رمز نقطي التدعيم والترميم
رمز نقطي أعمال المساجد
رمز نقطي التنفيذ بالأمانة
رمز نقطي أعمال قيد التنفيذ
رمز نقطي أعمال منفذة
رمز نقطي معلومات عامة
رمز نقطي مواقع صديقة
رمز نقطي أخبارنا
رمز نقطي سجل الزوار
رمز نقطي من نحن
رمز نقطي اتصل بنا

 
بحث في المشاريع
التصنيف
 
النوع
اسم المشروع
  

 
 
القائمة الإخبارية
اضف بريدك للحصول على تحديثات و أخبار موقعنا
 
الاسم الكامل:
البريد الالكتروني :

 
أحوال الطقس
 
 
 
 
 
 
 
 
صفحة جديدة 1
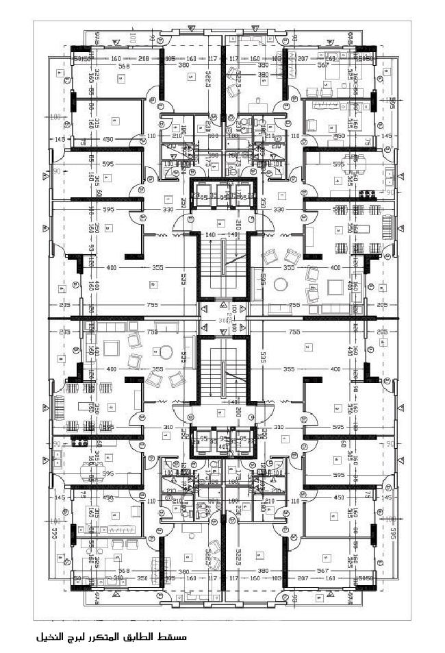
الصفحة الأولى > الدراسات الهندسية > برج النخيل.. 
 
تفاصيل المشروع
 

 



يقع برج النخيل في منطقة الوعر في الجزيرة السابعة على المقسم (
691 ), ومساحة الأرض المشاد عليها (2700) مترمربع , ومساحة رقعة البرج المنشأ عليها (880) متر مربع , في الطابق القبو خدمات للبرج لخزانات المازوت وشديرات التدفئة  , وباقي المساحة من الأرض التي تبلغ (1800) متر مربع هي عبارة عن مرآب لسيارات البرج  , حيث يلحق كل شقة موقف لسيارة واحدة وهذا المرآب محقق لكل مقايس السلامة والتهوية والإنارة الطبيعية , وفي الطابق الأرضي يحوي المداخل والمصاعد وغرف الإستعلامات والحرس ويحوي مصلى تابع للبرج  , أما باقي الطوابق الأربعة عشر فهي شقق سكنية مساحة الواحدة منها (220) متر مربع تأخذ حيذ زاوية من رقعة البناء وبالتالي فإن البرج يحوي على (56) شقة سكنية.
 
المواصفات :
* تركيب الاباجورات الخارجية لكامل البناء
* تركيب باب مدخل الشقة الرئيسي من خشب الكلير
* إكساء الواجهات الخارجية الأربعة للمبنى برخام وطني من النوع الجيد
* إكساء الأدراج برخام من النوع الجيد
* تركيب مصاعد عدد ثلاثة لكل درج
* تركيب مولدة لتشغيل مصعد واحد في كل درج مع تغذية كل شقة ب 300-400 واط في حال إنقطاع التيار الكهربائي
* تنفيذ أنابيب المياه المالحة والحلوة وتيب الكهرباء والهاتف
* تنفيذ القوالب الخشبية المستعارة
* تنفيذ الطينة الإسمنتية /التلبيس
*تنفيذ غرفة للناطور وغرفة لعدادات المياه والكهرباء وهي ملكية مشتركة لكامل المبنى

 

 

 

 

 

صور و مخططات المشروع
 
صور مراحل تطور المشروع
 
تفاصيل المشروع

النوع : أبراج

التصنيف: الدراسات الهندسية

تاريخ الانتهاء :0000-00-00

 
 
 
 
 
 
 


© All Rights Reserved for alwajieh.
2326462